new
Цифровой товар

Чертеж стенда манометров

129.00 руб.

Техническая документация на стенд манометров на базе стойки К_314

  • Автор: BASEcad
  • Артикул: АТХ_0027
  • ПО: AutoCAD 2010, КОМПАС 3D v20, MS Visio 2021
  • Форматы: dwg, frw, vsdx
  • Теги: арматура_КИПиА
Описание Характеристики Отзывы
  • Описание чертежа на стенд манометров на базе стойки К_314

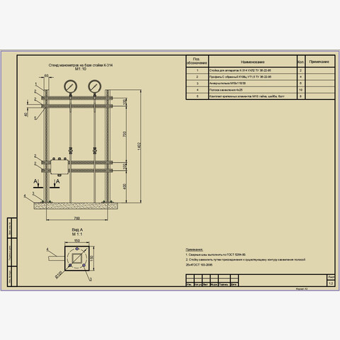
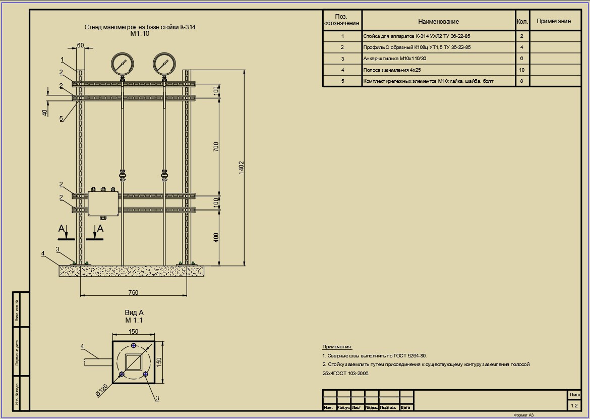
    Представленный комплект технической документации охватывает разработку и сборку специализированного стенда для манометров, базирующегося на стойке модели К_314. В состав материалов входят:

    • сборочный чертёж, демонстрирующий компоновку стойки из унифицированных технических элементов;
    • детализированный перечень комплектующих, необходимых для изготовления конструкции;
    • методические указания по монтажу готового изделия.

    Перечень используемых комплектующих

    Для сборки стенда применяются следующие стандартизированные элементы:

    1. Стойка для аппаратов К_314 УХЛ2 (соответствует ТУ36_22_85) -- основа конструкции, обеспечивающая надёжность и устойчивость стенда.
    2. С_образный профиль К108ц УТ1,5 (по ТУ36_22_85) -- элемент, формирующий каркас и обеспечивающий жёсткость сборки.
    3. Анкер_шпилька М10×110/30 -- крепёжное изделие для фиксации стойки к основанию.
    4. Полоса заземления 4×25 -- компонент, обеспечивающий электробезопасность конструкции.
    5. Комплект крепёжных элементов М10 (гайка, шайба, болт) -- набор метизов для соединения всех узлов стенда в единую систему.

    Документация позволяет в точности воспроизвести конструкцию, соблюдая требования технических условий и гарантируя соответствие готового изделия эксплуатационным нормам.

    Форматы файлов:

    • AutoCAD 2D-чертеж .dwg (версия 2010 и выше);
    • КОМПАС 3D фрагмент .frw (версия v20 и выше, импортированный из AutoCAD 2010).
    • MS Visio документ .vsdx (версия 2021 и выше, импортированный из AutoCAD 2010).

     


    Просмотреть страницу – «Как скачать?»



    Подписывайтесь на рассылку BASEcad и получайте файлы бесплатно!


     

  • Формат файла: AutoCAD 2010 (dwg) , MS Visio (vsdx) , КОМПАС v20 (frw)
    Тип файла: технический чертеж
  • Отзывов - 0
    Оставить отзыв
    Войдите или зарегистрируйтесь, чтобы получить возможность оставлять отзывы на сайте.
Советуем также посмотреть
Нужна консультация? Задайте вопрос нашему специалисту!
Задать вопрос
Имя отправителя *:
E-mail отправителя *:
Тема письма:
Текст сообщения *:
Оценка сайта:
Код безопасности *:

Имя отправителя *:
E-mail отправителя *:
Тема письма:
Текст сообщения *:
Оценка сайта:
Код безопасности *: