Сосуды в системах КИПиА: назначение, типы и применение
Основные виды сосудов для КИПиА
В системах контрольно‑измерительных приборов и автоматики (КИПиА) применяются специализированные сосуды, выполняющие защитные и стабилизирующие функции. Рассмотрим ключевые типы:
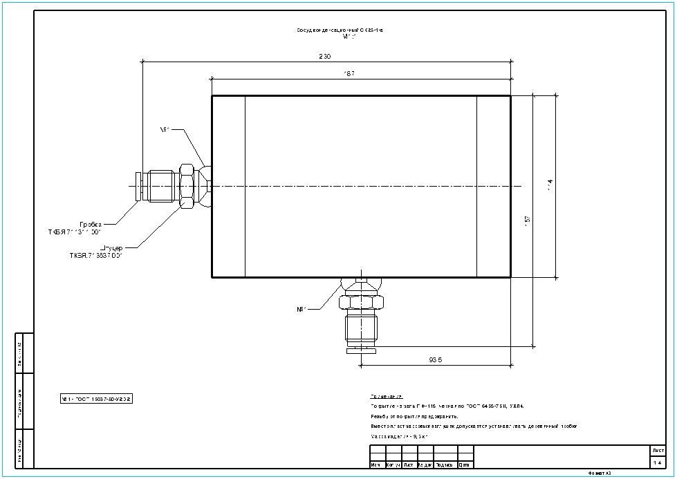
- Сосуд конденсационный (СК) — обеспечивает поддержание стабильного уровня жидкости в соединительных линиях, ведущих к первичным преобразователям давления и перепада давления.
- Сосуд уравнительный (СУ) — служит для выравнивания уровня жидкости в импульсных линиях, подключённых к измерительным устройствам.
- Сосуд разделительный (СР) — защищает первичные преобразователи давления и перепада давления, а также соединительные импульсные линии от прямого контакта с агрессивными измеряемыми средами.
- Сосуд влагоотделительный (СВ) — служит для создания изолирующего слоя между измеряемой средой и измерительным прибором. Роль защитного барьера выполняет специально подобранная жидкость.
Проектирование сосудов КИПиА
Нормативная документация и обозначения сосудов
При проектировании и оформлении схем сосудов КИПиА руководствуются следующими стандартами:
- ГОСТ 3925‑59 — устаревший стандарт, применяемый исключительно для расшифровки ранее разработанных схем;
- ГОСТ 21.408‑2013 — действующий норматив, используемый при создании новой проектной документации.
Условно‑графические обозначения на схемах позволяют оперативно идентифицировать тип сосуда и его функциональное назначение.

Конструкторская документация и типовые модели
Для изготовления сосудов КИПиА и сопутствующих элементов крепления разработаны рабочие чертежи и трёхмерные модели согласно технической документации ТК4. Ниже приведён перечень основных изделий с их идентификационными кодами:
- сосуды конденсационные (СК) — ТКБЯ.302661.001;
- сосуды уравнительные (СУ) — ТКБЯ.302661.001;
- сосуды разделительные (СР) — ТКБЯ.302661.001;
- сосуды влагоотделительные (СВ) — ТКБЯ.302661.001;
- стойка для крепления сосудов СП‑22 (СТК4‑9‑96).

Практическое применение в измерительных схемах
Сосуды КИПиА интегрируются в разнообразные принципиальные схемы измерений, обеспечивая надёжность и точность показаний. Типичные области использования:
- Измерение давления — работа с жидкостями, паром и газовыми средами. Сосуды стабилизируют условия передачи сигнала, минимизируя погрешности из‑за колебаний уровня или фазовых переходов.
- Измерение уровня жидкости — поддержание постоянства гидростатического столба в импульсных линиях, что критично для корректного расчёта высоты заполнения резервуара.
- Измерение расхода — применение в системах учёта потребления жидкостей, пара и газов. Сосуды исключают влияние пульсаций и загрязнений на работу расходомеров.
Таким образом, сосуды КИПиА выступают неотъемлемым элементом измерительных цепей, гарантируя долговечность оборудования и достоверность данных в условиях агрессивных сред и динамических нагрузок.

Перечень материалов для проектирования сосудов, имеющихся в нашем каталоге
 |