new
Цифровой товар

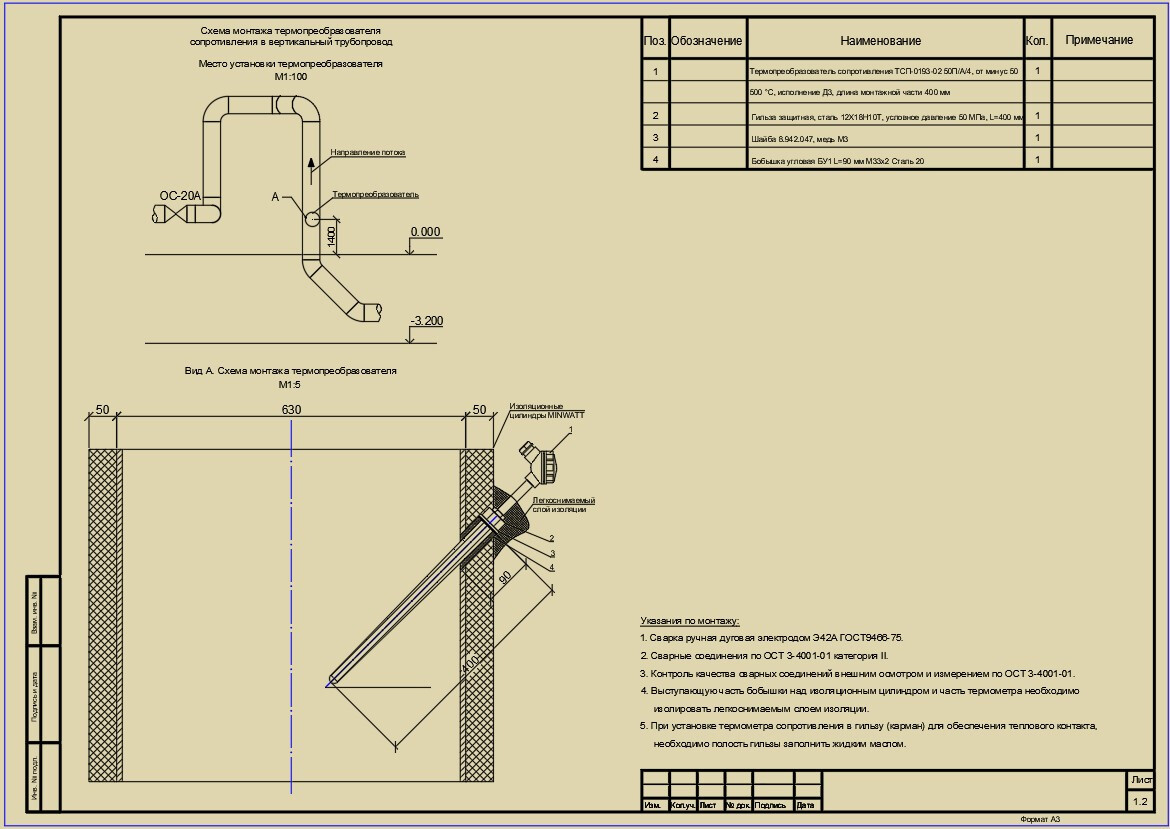
Схема монтажа термопреобразователя

239.00 руб.

Монтаж термопреобразователей сопротивления: комплект схем для рабочей документации

  • Автор: BASEcad
  • Артикул: АТХ_0009
  • ПО: AutoCAD 2010, КОМПАС 3D v20, MS Visio 2021
  • Форматы: dwg, frw, vsdx
  • Теги: датчики
Описание Характеристики Отзывы
  • Варианты установки термопреобразователей в трубопроводных системах

    Комплект чертежей для рабочей документации включает подробные схемы монтажа термопреобразователей сопротивления — критически важного элемента систем контроля температуры. Представлены решения для двух основных конфигураций трубопроводов, встречающихся на практике.

    Монтаж датчика в вертикальный трубопровод

    Специальная схема демонстрирует особенности установки термопреобразователя в вертикальные участки трубопроводных систем. Решение учитывает специфику движения рабочей среды и обеспечивает оптимальный контакт датчика с измеряемой средой для высокой точности показаний.

    Монтаж датчика в горизонтальный трубопровод

    Отдельная схема разработана для горизонтальных участков трубопроводов. В ней учтены особенности распределения температуры по сечению трубы и предложены оптимальные способы фиксации термопреобразователя для надёжного и стабильного измерения.

    Состав схем установки термопреобразователей:

    • Точное место установки термопреобразователя — на схеме чётко обозначена точка монтажа с привязкой к трубопроводу.
    • Детальный чертёж монтажа — графическое представление процесса установки с указанием:
      • способа крепления устройства;
      • ориентации термопреобразователя относительно потока среды;
      • необходимых монтажных приспособлений и крепежа;
      • последовательности операций при монтаже.
    • Спецификация компонентов — таблица с перечнем всех элементов, задействованных в монтаже.
    • Указания по монтажу — текстовая часть чертежа.

    Форматы файлов:

    • AutoCAD 2D-чертеж .dwg (версия 2010 и выше);
    • КОМПАС 3D фрагмент .frw (версия v20 и выше, импортированный из AutoCAD 2010).
    • MS Visio документ .vsdx (версия 2021 и выше, импортированный из AutoCAD 2010).

     


    Просмотреть страницу – «Как скачать?»


  • Формат файла: AutoCAD 2010 (dwg) , MS Visio (vsdx) , КОМПАС v20 (frw)
    Тип файла: технический чертеж
  • Отзывов - 0
    Оставить отзыв
    Войдите или зарегистрируйтесь, чтобы получить возможность оставлять отзывы на сайте.
Советуем также посмотреть
Нужна консультация? Задайте вопрос нашему специалисту!
Задать вопрос
Имя отправителя *:
E-mail отправителя *:
Тема письма:
Текст сообщения *:
Оценка сайта:
Код безопасности *:

Имя отправителя *:
E-mail отправителя *:
Тема письма:
Текст сообщения *:
Оценка сайта:
Код безопасности *: